Inwestycja zakończona (sprzedane)

Ta inwestycja niestety nie znajduje się już w naszej ofercie.

Zadzwoń do nas – chętnie przedstawimy dostępne domy i doradzimy najlepszy wybór.

Marhel House

Dom w Zbrudzewie nr 10

Oferujemy dom jednorodzinny z garażem powstający na osiedlu w miejscowości Zbrudzewo. Miejscowość oferuje bardzo dobry dojazd do miasta Śrem (3 km) oraz Poznania (40 km).

Lokalizacja bardzo wygodna dla tych, którzy chcą odpoczywać poza miejskim zgiełkiem, jednocześnie pracując w mieście. Oferuje bardzo dobry dojazd, znajdujemy się „na wlocie” do Śremu oraz dostatecznie poza nim, aby sprawnie dostać się do Poznania, Kórnika czy też Środy Wielkopolskiej.

Na końcu osiedla w Zbrudzenie znajduje się wjazd do lasu, a tam już niezbadane „dla nowych mieszkańców” lokalizacje. Zarówno biegacze, jak i rowerzyści znajdą coś dla siebie. Zbrudzewo to bardzo dobre miejsce wypadowe w każdym kierunku.

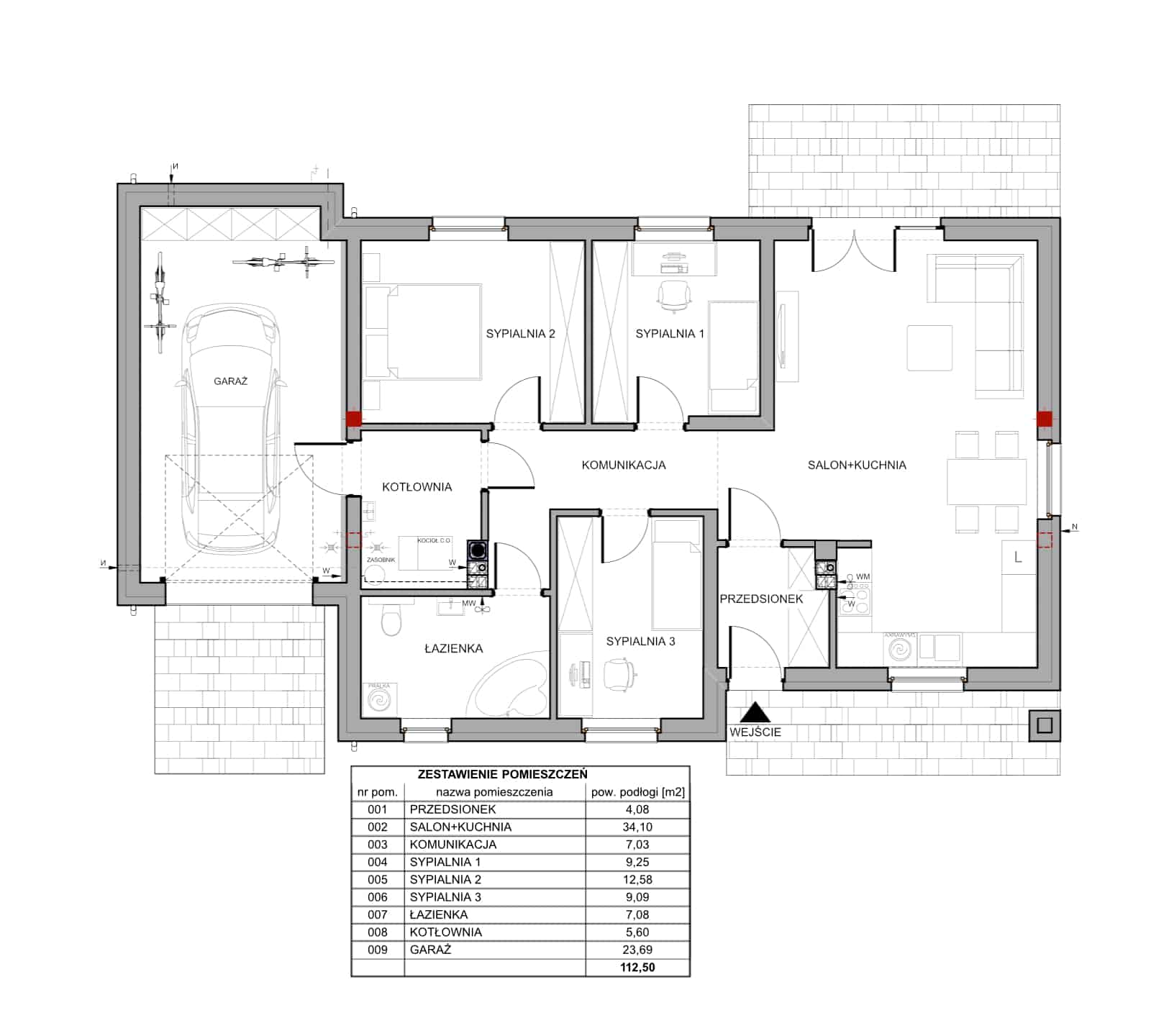
Nowoczesny układ pomieszczeń zdecydowanie przyjął się w budownictwie mieszkaniowym. Do dyspozycji domowników duży salon z aneksem kuchennym. Za sprawą trzech okien pomieszczenie będzie bardzo dobrze doświetlone w dzień. Na mieszkańców czekają trzy sypialnie, choć nic nie stoi na przeszkodzie, aby jedną z nich zaadoptować na biuro. Całość dopełnia garaż ze „strefą buforową” w kotłowni. Docenią go wszyscy wracający do domu w deszczowe dni.

Działka daje możliwości zaaranżowania ogródka wypoczynkowego do spędzania czasu na świeżym powietrzu. Wierzymy, że każdy znajdzie tu coś dla siebie.

Zbrudzewo to komunikacyjny „złoty środek” dla pracujących w Poznaniu. Możliwości komunikacyjne są bardzo dużym atutem lokalizacji naszych domów.

Zapraszamy do kontaktu, z chęcią odpowiemy na Państwa pytania.

Dane lokalizacyjne

  • Śrem – 3 km
  • Poznań – 40 km

Informacje podstawowe

Oferujemy dom z garażem usytuowany bezpośrednio przy drodze utwardzonej. Najważniejszymi atutami oferowanych domów jest podwyższony standard wykończenia oraz ich usytuowanie na dużych powierzchniowo działkach.

Metraż: 112 m2 (powierzchnia mieszkalna 89m2, garaż 23 m2)

Powierzchnia działki: 696 m2

Standard wykończenia: podwyższony deweloperski

Wykończenie wewnętrzne

  • Ściany działowe murowane
  • Wykończenie ścian wewnętrznych: tynk natryskowy gipsowy
  • Sufit: płyta G-K, izolacja płytami z wełny mineralnej o gr. 15 i 10 cm
  • Posadzka: wylewka betonowa
  • Ogrzewanie podłogowe

Wykończenie zewnętrzne

  • Ściany fundamentowe z bloczków betonowych, izolowanych i ocieplonych
  • Ściany zewnętrzne z bloczków ceramicznych docieplonych styropianem o gr. 15 cm, pokryte tynkiem silikonowym
  • Dach: konstrukcja drewniana, deskowany, opapowany, dachówka płaska betonowa BRAAS Teviva
  • Stolarka okienna: okna PCV na profilu 6-komorowym, pakiet 3-szybowy
  • Rolety antywłamaniowe zewnętrzne sterowane na silniki elektryczne wraz z włącznikami
  • Parapety zewnętrzne: blacha powlekana
  • Brama garażowa z napędem elektrycznym
  • Wykończenie posadzki na tarasie, dojście do budynku, podjazd do garażu – kostka betonowa

Zostaw numer, a my oddzwonimy.

MARHEL HOUSE Żaneta Koch, Przemysław Koch Spółka Cywilna
ul. Długa 41, Zbrudzewo, 63-100 Śrem
NIP 785 180 44 81, Regon 368865663

Zadzwoń do nas

+48 517 441 831

Zadzwoń do nas

+48 507 050 098

Napisz do nas

biuro@marhelhouse.pl

Odwiedź nas

www.marhelhouse.pl